北京獵雕偉業起重設備有限公司歡迎您!獵雕起重專業生產手動/電動龍門吊,升降/移動龍門吊,鋁合金龍門吊,懸臂吊,自立式起重機,組合式KBK起重機,模組KBK軌道等輕小型起重產品。
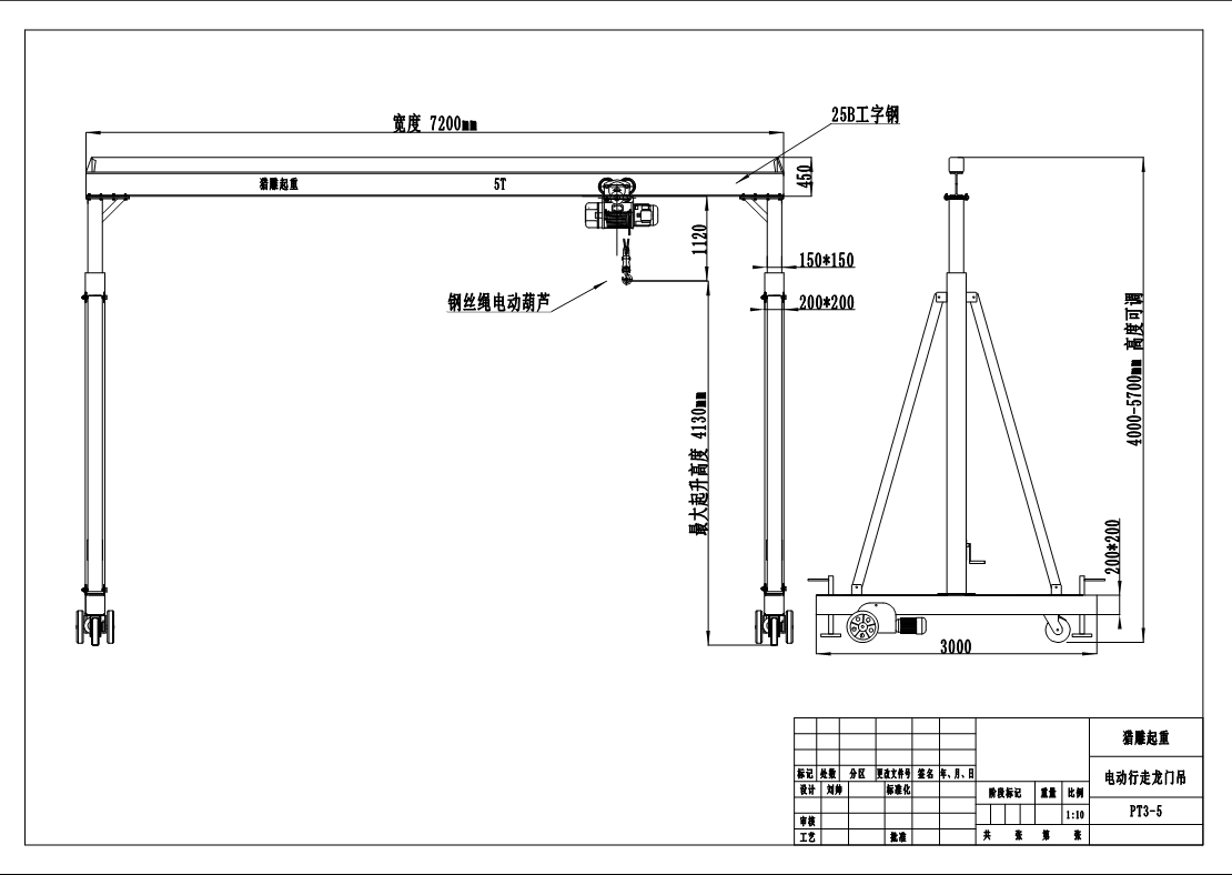
電動無軌移動龍門吊
描述: 獵雕起重電動無軌移動龍門吊詳細參數頁。
關鍵字:電動無軌移動龍門吊
|
型號 |
PT3 |
加工定制 |
是 |
型號 |
PT3 |
|
品牌 |
獵雕 |
型號 |
PT3 |
類型 |
電動無軌移動龍門吊 |
|
操作形式 |
電動無軌行走 可電動升降 |
結構形式 |
門架式 |
跨度 |
可定制(米) |
|
懸臂長度 |
可定制(米) |
有效起升高度 |
可定制(米) |
額定起重量 |
10(噸)可定制 |
電動無軌移動龍門吊產品特點:
1、電動行走,通過萬向腳輪進行移動,無需鋪設軌道,受局限性小;
2、起重噸位大,電動驅動十分省力;
3、型號參數可定制,根據客戶提供相應參數進行設計和制作。


提示:以上參數僅供參考,具體參數數值還需根據客戶實際應用情況定制。
如果您有訂購的需求,可以聯系我們咨詢。
聯系電話:15531107201 18519861704(同微信)